top of page
Ready to go Plans
Benefits of ready to go plans.
1. Save Time: Ready-to-go plans are designed to save you time. You don’t have to spend hours researching and designing a plan from scratch.
2. Cost Savings: Ready-to-go plans are often more cost-effective than custom plans. This is because they are already designed and ready to go, so you don’t have to pay for the design process.
3. Professional Quality: Ready-to-go plans are designed by professionals, so you can be sure that they are of high quality.

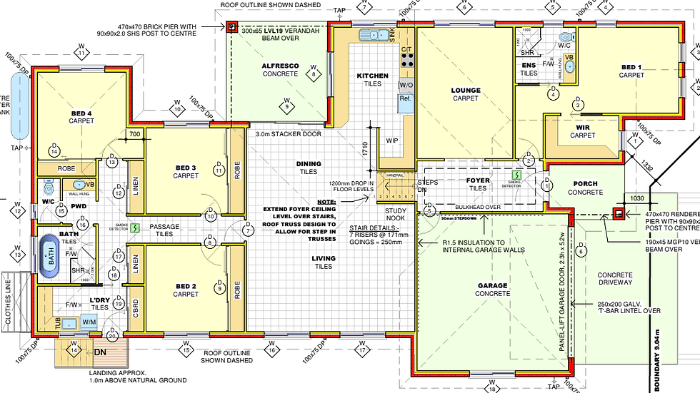
The Zellar
The Zellar ready to go plans.

The Okeefe
The O'keefe ready to go plans.
bottom of page
